- PROGRAMA Habitação Multifamiliar
- ORÇAMENTO 3.500.000,00€
- CLIENTE Limites e Polígonos
- ARQUITECTURA com Feedback-Studio Arquitectos e Branco Cavaleiro Architects
- ENGENHARIA Sprenplan Engenharia
- CONSTRUÇÃO Baltor Engenharia e Construção
- LOCALIZAÇÃO Viana do Castelo, Portugal
- ANO DE PROJETO 2009
- ANO DE CONSTRUÇÃO 2016-2017
- ÁREA 3.290,00 m²
- ESTADO Concluído
- FOTOGRAFIA João Morgado
O projecto nasce da necessidade de revitalização do quarteirão da antiga Fábrica de Chocolates Avianense, localizada no centro histórico de Viana do Castelo, Portugal. Trata-se de um projecto balizado pelos parâmetros urbanísticos definidos no Plano de Pormenor do Centro Histórico para essa área, prevendo a abertura de novas vias que “cozem” o tecido urbano e permitem o surgimento de novos espaços urbanos.
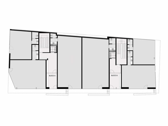
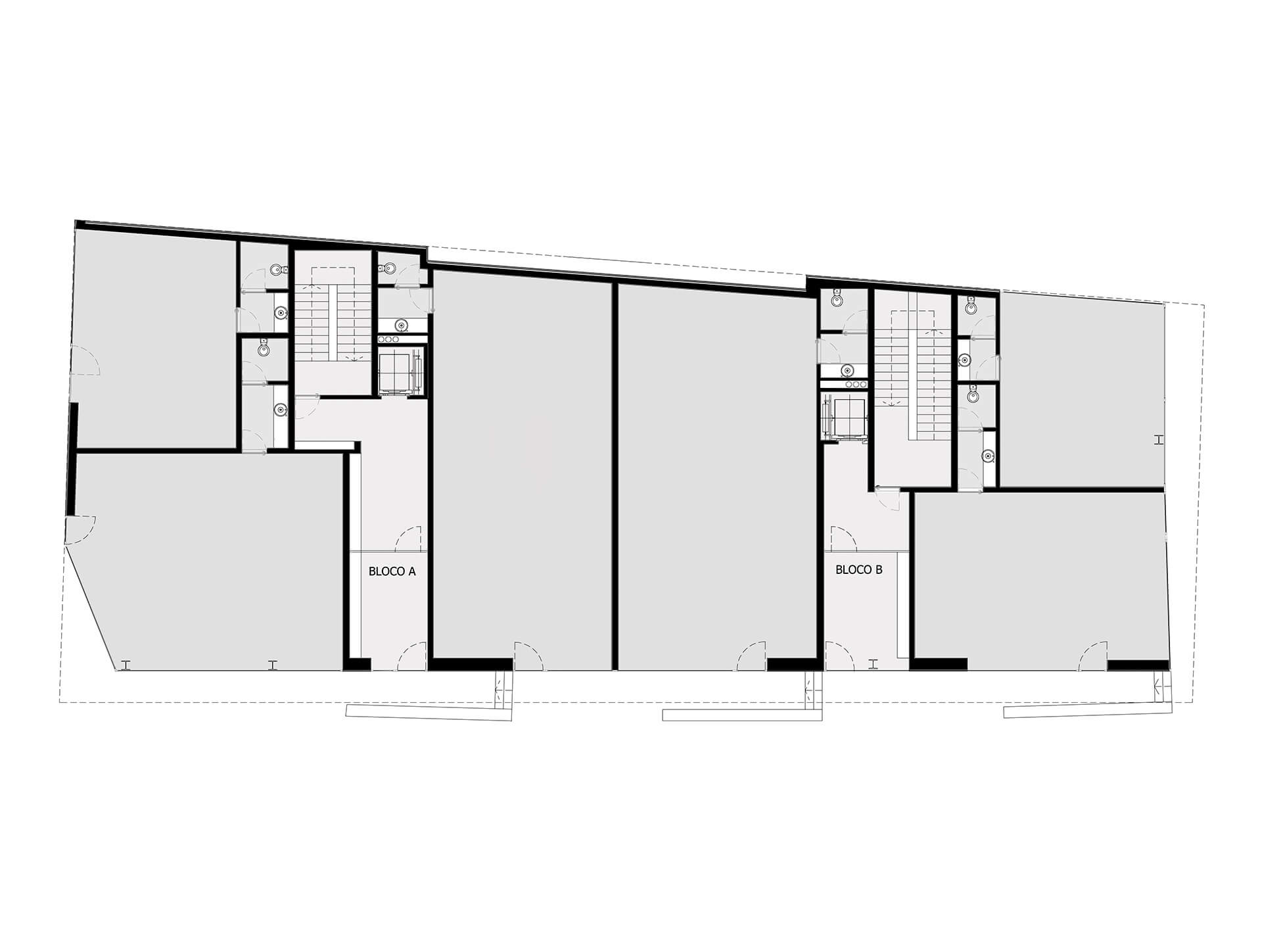
A antiga Fábrica de Chocolates Avianense constava de um edifício de arte nova de valor patrimonial, a respeitar e duas naves industriais que, depois de demolidas, deram lugar ao edifício de habitação multifamiliar.
O Edifício Chocolate materializou-se numa volumetria compacta que sofre deformações a partir do seu contexto imediato e também através do estudo da transição volumétrica entre a escala do quarteirão onde se situa e a escala e volumetrias do edificado do centro histórico de Viana do castelo.
A fachada ou “pele envolvente” apresenta um ritmo de vãos (cheios e vazios) cuja proporção tem como referência os vão existentes do edifício da antiga fábrica. Estes novos vãos organizam uma linguagem mais abstracta, mas ao mesmo tempo, sugerem diferentes relações interior-exterior com o contexto.






















