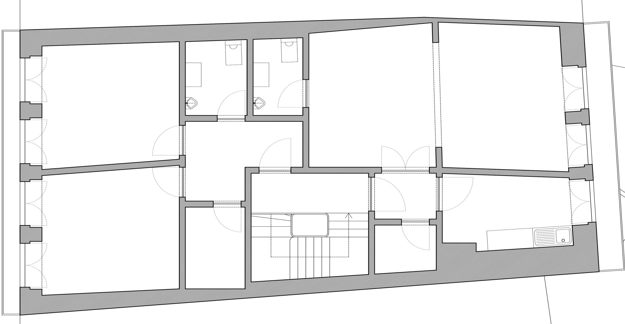
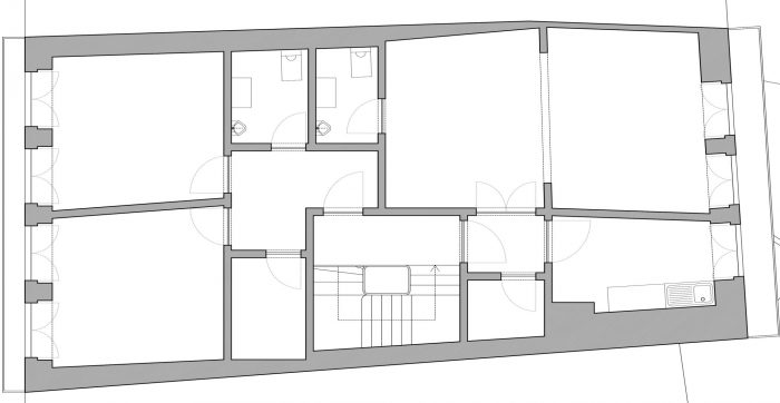
• PROGRAMA Habitação
  • CLIENTE Limites e Polígonos - Promoção Imobiliária, Lda
  • LOCALIZAÇÃO Viana do Castelo, Portugal
  • ANO DE PROJETO 2020
  • ÁREA 97,00 m²
  • ESTADO Concluído