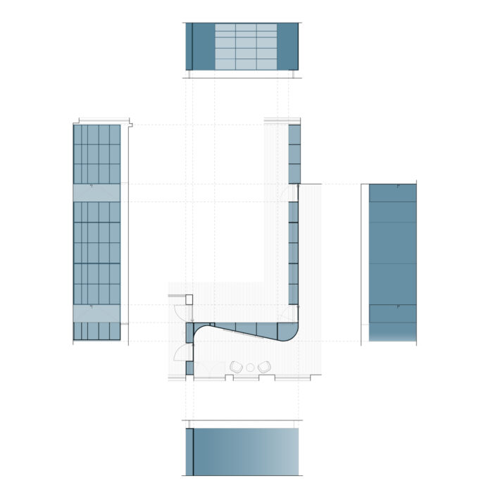
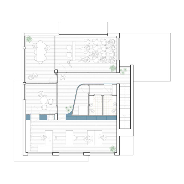
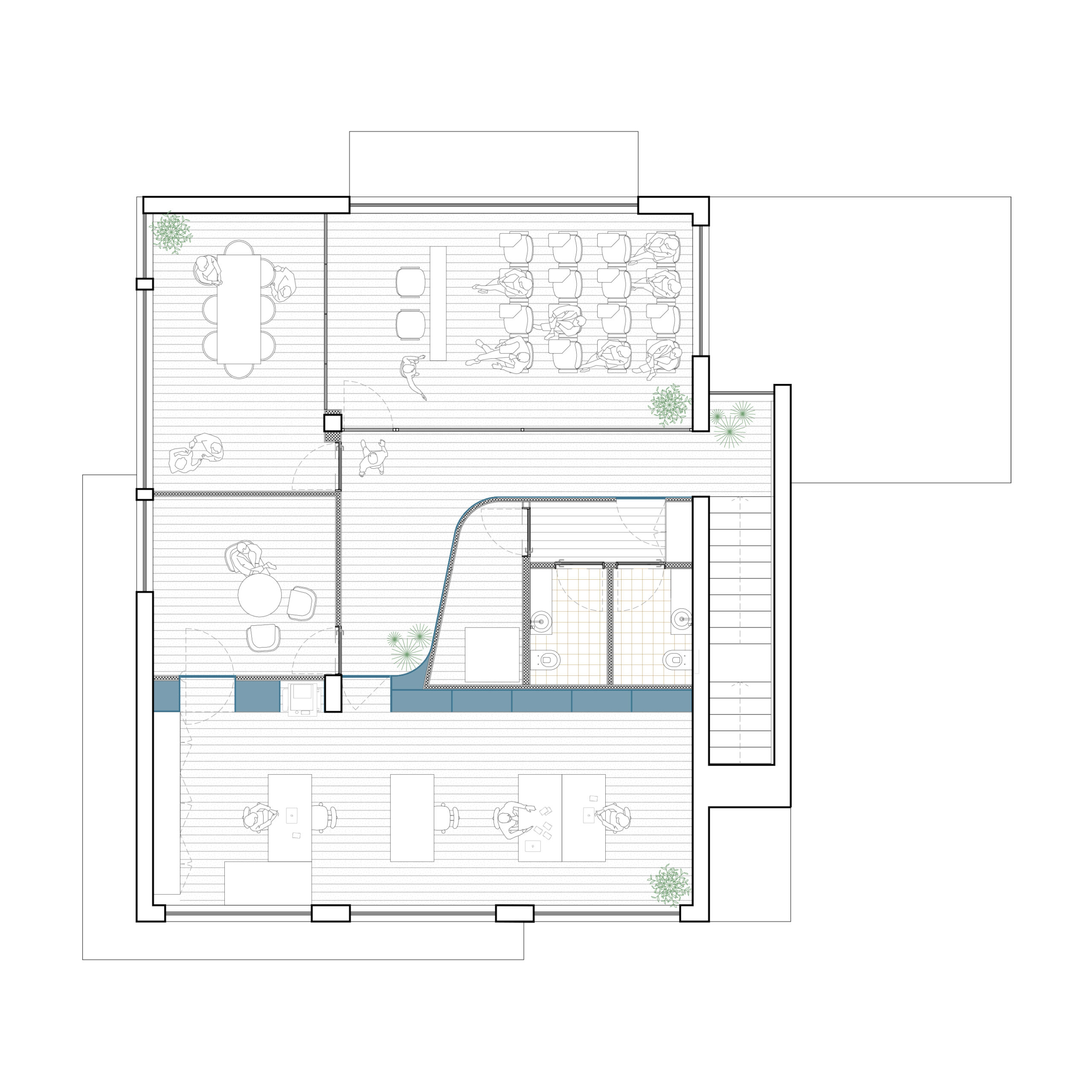
• PROGRAMA Sede Empresarial
  • CLIENTE Lima Log
  • CONSTRUÇÃO Onworks
  • LOCALIZAÇÃO Viana do Castelo, Portugal
  • ANO DE PROJETO 2017
  • ANO DE CONSTRUÇÃO 2018
  • ÁREA 330,00m²
  • ESTADO Concluído