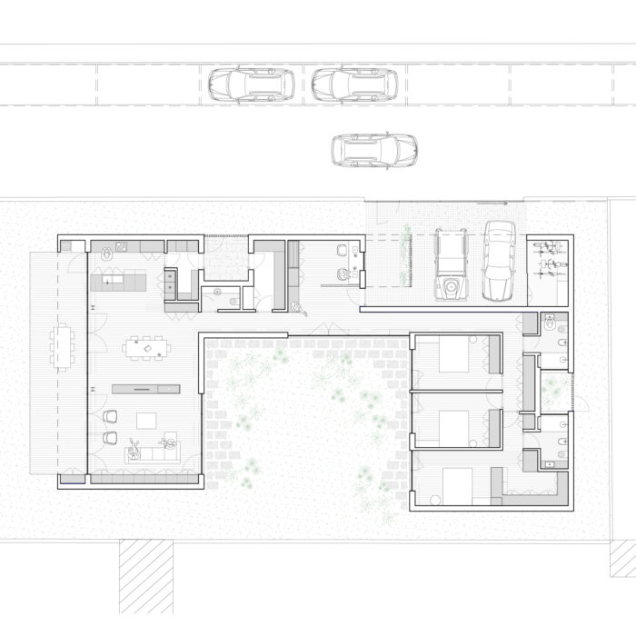
• PROGRAMA Habitação Unifamiliar
  • CLIENTE Privado
  • ENGENHARIA LEN Engenharia
  • LOCALIZAÇÃO Viana do Castelo, Portugal
  • ANO DE PROJETO 2020
  • ANO DE CONSTRUÇÃO 2023
  • ÁREA 247,70 m²
  • ESTADO Concluído
  • FOTOGRAFIA João Lopes Cardoso